Till innehållet

Villatomter på Södra Sörkastet

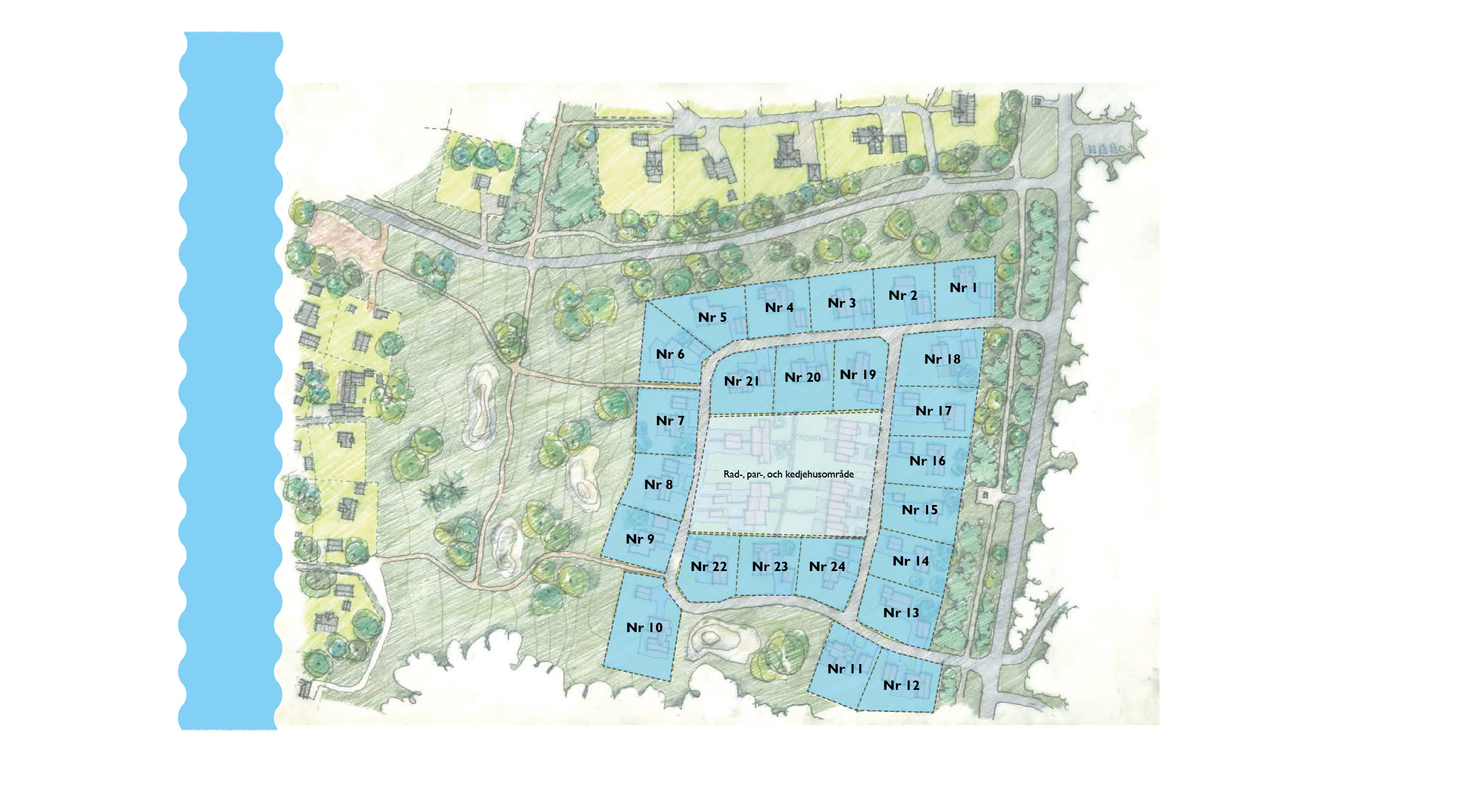
planbild södra sörkastet.jpg

Södra Sörkastet ligger söder om Beckasinvägen endast 4 kilometer från Kristinehamns centrum. Ett stenkast från området hittar du gemytliga badplatser, bryggområden, restauranger, cafeér, strövområden och mycket mer. Här har du både naturen och en fantastisk vänervy som nära grannar. Södra Sörkastet är ytterligare ett steg i kommunens pågående utveckling av nya bostadsområden längs med Tranvägen i Östra Vålösundet. 

Södra Sörkastet består av 24 villatomter samt ett rad-, par- eller kedjehusområde med cirka 20 bostäder. Villatomternas storlek är minst 1200 kvm och har generös byggrätt, 20% av fastighetsarean får bebyggas med en friliggande villa och komplementbyggnader i ett eller två plan.

Nu är utbyggnaden av gator och vatten- och avloppsledningar färdig och de första tomterna är redo att släppas till försäljning i slutet av augusti.

Pris: 750 000 – 1 000 000 konor, exklusive VA-anslutning.

Mer information om tomterna uppdateras löpande, nedan kan du läsa gällande planhandlingar

Försäljningsprocessen

Tomt nr 1-17 kommer att säljas via upphandlad mäklare Svensk Fastighetsförmedling. 

Information om övriga tomter 18-24 kommer inom kort.

Budgivning på tomt 10 startar onsdag 20/8 kl 12.00
Bokning av övriga tomter sker via e-post till ansvarig mäklare linda.karas@svenskfast.se från och med den 29/8 kl 12.00.

Ett informationsmöte med representanter från Kristinehamns kommun och Svensk Fastighetsförmedling kommer att hållas på tomterna på Södra Sörkastet fredag den 15/8 kl 12.00-15.00.

Intresserad av en tomt?

Kontakta Linda Karas, fastighetsmäklare Svensk Fastighetsförmedling

Mejl: linda.karas@svenskfast.se

Telefon: 070-485 10 13 

Läs mer om projektet och se nytagna bilder från området på Svensk Fastighetsförmedlings hemsida.

Är du intresserad av markanvisningsprocessen kan du klicka här för mer information. 

Kontaktuppgifter

Anna Johansson - mark- och exploateringshandläggare
Anna.Johansson1@kristinehamn.se

0550-882 52

Tack! Om du vill skriva en kommentar kan du göra det här. Tryck annars bara på "Skicka". Om du vill felanmäla något annat än webbplatsen, eller kanske lämna ett förslag, begära ut en handling eller liknande så gör du det i e-tjänsten Kontakta kommunen istället..